Willkommen auf der offiziellen Seite von
O.L.K. Konstruktionsbüro
Meine Referenzen aus dem Hochbau
Bewehrungspläne
Fundament für Industriehalle
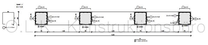
Beschreibung Hier wurde ein Bewehrungsplan eines Fundamentes für eine Industriehalle angefertigt. Diese wurde im BIM verfahren erstellt. Dadurch war die Visualiserung für den Kunden deutlich einfacher und Kollisionen mit verschiedenen Elementen konnten voll ausgeschlossen werden.
Kunde vnplan Beratende Ingenieure GmbH

Carport und Garage
Carport und Garage
Beschreibung Bei diesem Projekt wurden Bewehrungspläne im BIM verfahren für Carport und Garage erstellt.
Decke eines Reihenhauses
Beschreibung Mithilfe des dreidimensionalen Zeichnens eines Bewehrungsplans einer Decke über EG, konnte die Visualisierung für den Kunden viel besser präsentiert werden und auch für die ausführende Firma vereinfachte es den Bauablauf.




























